Mattenhof 3
SchliessenOrt: | Zürich, ZH |
Auftraggeber: | Genossenschaft Sunnige Hof, Zürich |
Jahr: | 2016 - |
Typ: |
|
Programm: |
|
Verfahren: | Gesamtleistungswettbewerb, 1. Rang |
Mitarbeitende: | Andreas Galli, Manuel Nagel, Lars Henze, Susi Krummenacher, Gabriel Staldin |
Generalunternehmen: | GROSS Generalunternehmung AG, Zürich |
Bauingenieur: | HKP Bauingenieure AG, Zürich |
Gebäudetechnik HLK: | Concept-G AG, Winterthur |
Elektrotechnik: | Mettler + Partner AG, Zürich |
Landschaft: | Albiez De Tomasi Architekten und Landschaftsarchitekten, Zürich |
Bild: | Atelier Brunecky, Zürich / Raumgleiter GmbH, Zürich |
Status: | In Bearbeitung |
Projektnummer: | 250 |
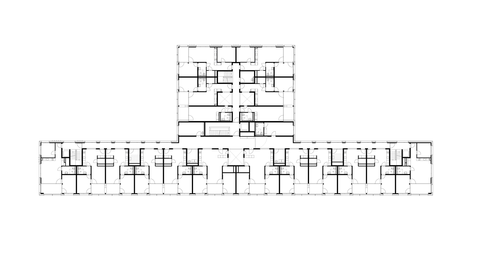
Das Wohnhaus der Genossenschaft «Sunnige Hof» befindet sich im Zürcher Aussenquartier Schwamendingen, das einem starken Verdichtungs- und Transformationsprozess unterliegt. Für den Ersatzneubau an der verkehrsbelasteten Dübendorferstrasse entwickelten wir einen zwischen den heterogenen Massstäben im Kontext vermittelnden Baukörper mit klarer Adressbildung zur Dübendorferstrasse. Das Erdgeschoss orientiert sich strassenseitig und wird mit öffentlichen Quartiernutzungen bespielt. Der Baukörper zeichnet die spezielle Grundstücksform nach und wird in einen strassenbegleitenden Längsbaukörper und in einen fein abgestuftes Hof- und Gartenhaus gegliedert. In den beidseitigen Gartenhöfen entsteht vertraute Kleinmassstäblichkeit.
Gemäss der Orientierungen entstehen im Fadenkreuz der Orientierungen süd-, west- und ostorientierte Wohnungen. Die Kleinwohnungen sind über eine «Rue intérieure» erschlossen, welche zum Ort der Begegnung der Hausbewohner wird. Die innere Weg wird durch die Fügung der Volumen, die Waschküchen sowie durch zwei Lichthöfe in Sequenzen mit unterschiedlichen Lichtstimmungen gegliedert. Die eingezogenen Loggien lösen den Lärmschutz und schaffen die notwendige Privatheit im belebten Umfeld.
Die Fassaden des Wohnhauses für ältere Menschen und alle Generationen bestehen aus einem Mauerwerk aus Sandsteinen. Die Steine stammen aus einem Steinbruch am Unteren Zürichsee und ist eine Nullenergiefassade. Die Fassade schafft eine Reminiszenz zu der benachbarten Wohnsiedlung derselben Genossenschaft in hellem Sichtbackstein und überzeugt mit einer präsenten und urbanen Ausstrahlung und einer samtenen Haptik.




